項目名稱: |
2024年蘭考縣園藝場黃桃產業發展項目 |
公示類別: |
建設工程規劃方案公示 |
建設單位: |
蘭考縣豐谷農業科技有限公司 |
建設單位聯系電話: |
17746388007 |
用地位置: |
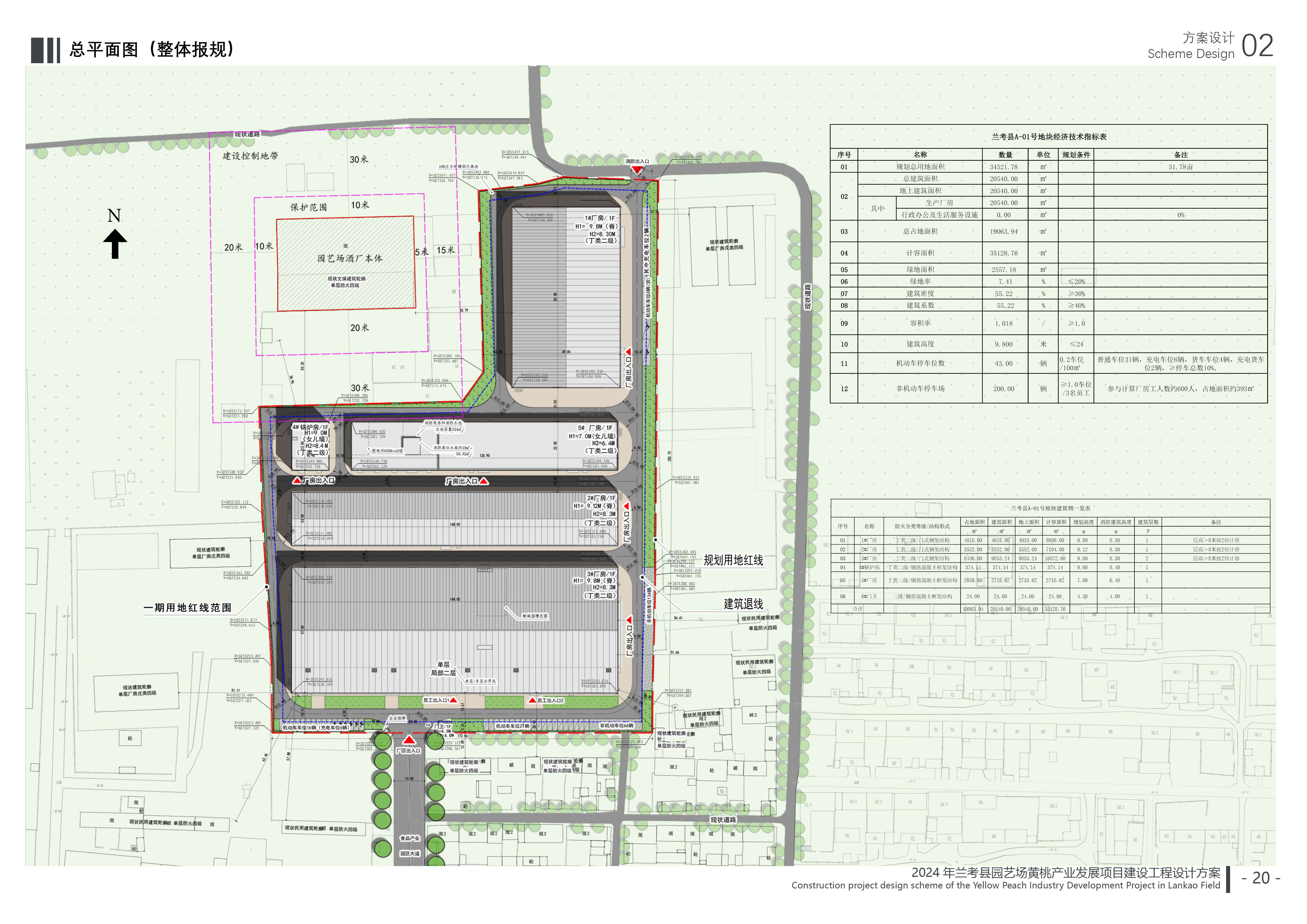
儀封園藝場農高路東路、農墾路北側 |
用地面積: |
34521.78平方米 |
總建筑面積: |
20540平方米 |
計容面積: |
35128.76平方米 |
建筑密度: |
55.22% |
容積率: |
1.018 |
綠地率: |
7.41% |
機動車停車位: |
43個 |
非機動車停車位: |
200個 |
公示期限: |
10日 |
公示日期: |
2025年10月24日 至 2025年11月2日 |
經辦股室: |
蘭考縣自然資源局建設工程規劃股 |
咨詢電話: |
0371—22221611 |
附加說明: |
查詢詳細內容,請出示身份證明,到我局辦理相關手續后查詢。依據《城鄉規劃法》、《行政許可法》、《河南省城市規劃公示制度》等有關法律法規,特此公示。如有意見和建議,請于公示時間內向我局反饋。 |
詳細內容: |
總平面圖、鳥瞰圖 |
總平面圖

鳥瞰圖

掃一掃在手機打開當前頁